top of page
HUNTER OSBORN
ARCHITECTURAL DRAFTING PROJECTS







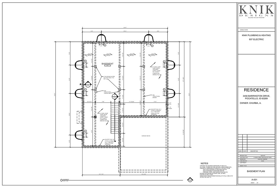
RESIDENTIAL PROJECT
Plans for a three bedroom house with an unfinished basement. These plans displays foundation and framing systems, proper dimensioning technique, stair design, sectioning, and schedules.





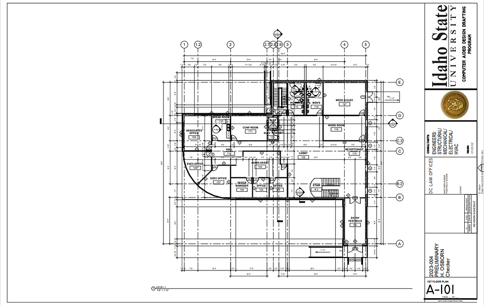
LAW OFFICE ELECTRICAL SHEET
Electrical sheets for Law Office Project. These sheets show placement of lights, switches, outlets, and equipment. All fixtures placed according to code. This project gave me an understanding of different fixtures, circuits, and how systems interact.
bottom of page











